Trilocale in vendita

Alpignano, Via almese - Centro Storico
€ 110.000
3 locali 3 locali
75 Mq 75 Mq
1 bagno 1 bagno

Trilocale in vendita

Alpignano, Via almese - Centro Storico

Descrizione annuncio

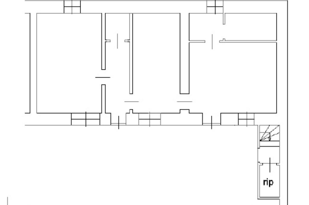
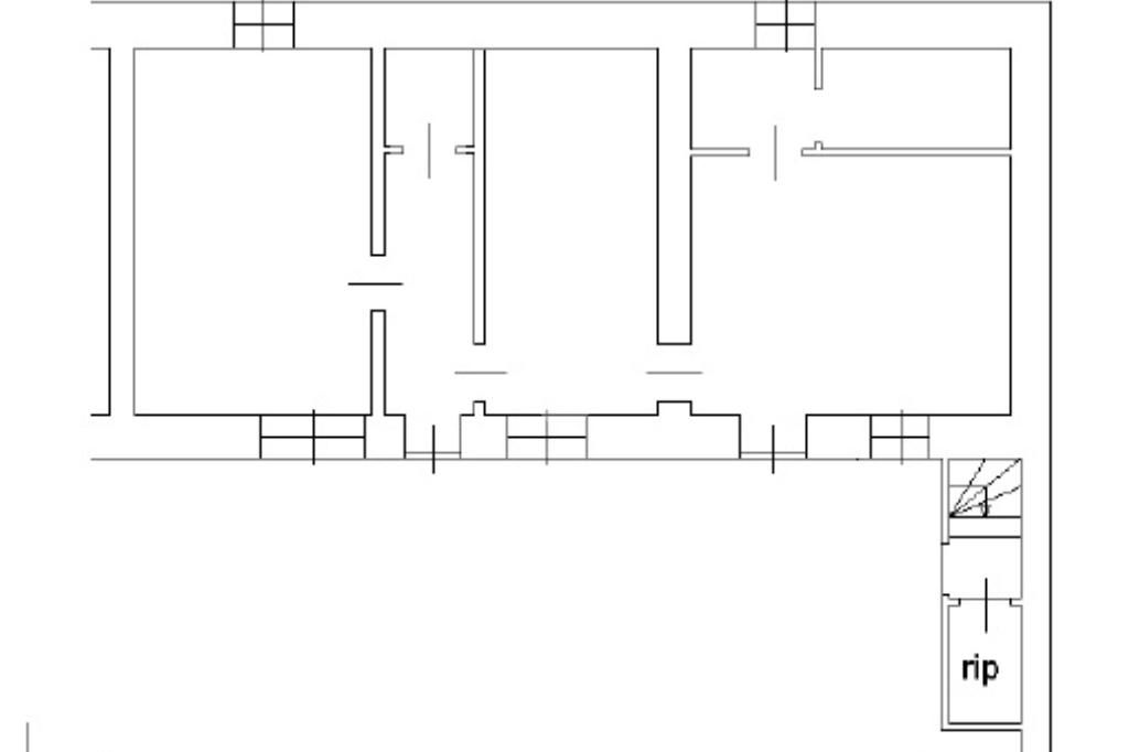
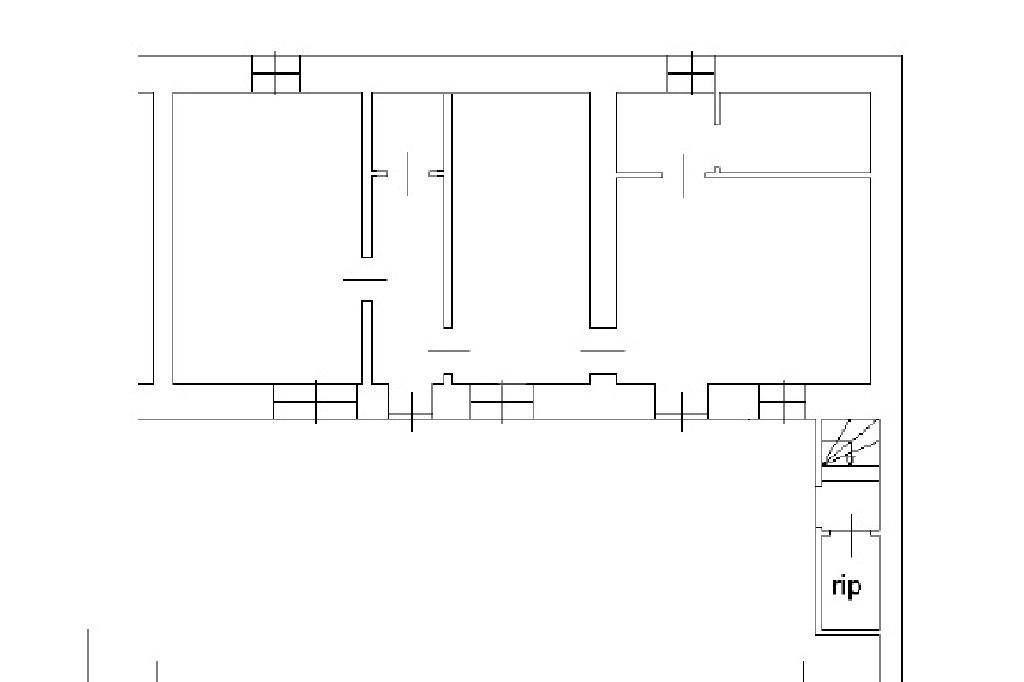
Inserito in un piccolo contesto abitativo ubicato nel pieno centro di Alpignano, a 50 metri dalla Piazza Girolina, l'appartamento è posizionato al piano terreno ed è privo di barriere architettoniche. Il soggiorno è spazioso e si presenta luminoso grazie ai due infissi che ospita al suo interno. Arricchito dai doppi muri che permettono una buona coibentazione verso l'esterno, quest'ultimo è adiacente alla cucina. Recentemente ristrutturata negli impianti e, nella sua disposizione, offre una parete lineare attrezzata. L'ingresso principale avviene attraverso la porta blindata sul disimpegno che permette di raggiungere zona notte e, zona giorno. Il comodo ripostiglio precede l'accesso alla grande camera da letto matrimoniale. Caratterizzata dalla sua generosa metratura, possiede la pavimentazione in legno. Il bagno finestrato, anch'esso recentemente rivisto negli impianti e nella sua disposizione, offre una doccia a filo muro arricchita dall'illuminazione a faretti incassata nel cartongesso. Tutti gli infissi esterni, così come le porte interne, sono appena state sostituite. Esposto completamente a sud, l'appartamento gode di una piacevole luminosità in ogni locale che lo compone. Adiacente all'immobile è presente la porta che ospita la scala che raggiunge la splendida cantina con il soffitto a volta e mattoni a vista. Disponibile da subito, l'appartamento viene venduto con il nuovo arredamento presente al suo interno. Grazie al riscaldamento autonomo gestito dalla nuova caldaia a condensazione, i consumi sono particolarmente contenuti. Ideale anche come investimento, l'immobile è preceduto dal piacevole giardino di uso comune.

Mostra tutto

Nelle vicinanze

Trasporto pubblico Trasporto pubblico
Alpignano
Alpignano
840 m
Vittorio Veneto
Vittorio Veneto
20 m
Toti
Toti
270 m
Ricariche auto elettriche Ricariche auto elettriche
Piscina I. Bonino | EnelX
1,9 Km
Pianezza Papa Giovanni II | EnelX
2,0 Km
EnelX EVA+ Centro Commerciale Auchan Rivoli
2,5 Km
Pianezza II Giugno | EnelX
2,6 Km
Scuole Scuole
Scuola Materna "Luigi Caccia"
270 m
Scuola Primaria "Antonio Gramsci"
510 m
Scuola Secondaria di primo grado "Alberto Tallone"
550 m
Scuola Primaria "Filippo Turati"
670 m
Scuola Primaria "Giacomo Matteotti"
910 m
Farmacia Farmacia
Farmacia Vietti
20 m
Farmacia Comunale 5
370 m
Farmacia San Giacomo
390 m
Farmacia
710 m
Farmacia Futura
1,2 Km
Ospedali Ospedali
Ospedali
350 m
RSA Residenza al Castello
630 m
Poliambulatorio ASL
1,9 Km
Poliambulatorio Villa Iris
2,3 Km
IRM
2,7 Km
Supermercati Supermercati
U2
380 m
LD
970 m
Lidl
1,0 Km
Carrefour Market
1,1 Km
Supermercati
2,0 Km
Negozi Negozi
Forno Girolina
90 m
United Colors of Benetton
200 m
Negozi
720 m
Panetteria da Franco
1,0 Km
Le follie di Katia
2,0 Km
Bar Bar
Bollincine
560 m
Ferehneit 451
600 m
Lattolandia
720 m
Operà
1,2 Km
Bar
1,8 Km
Ristoranti Ristoranti
La casa di Totò
470 m
Oasi dello chef
550 m
Ristorante Pizzeria Farenheit 451
600 m
Pizza In Piazza
710 m
Ristoranti
740 m
Mostra tutto

Caratteristiche

Rif.:
61118999
Piano:
Terra di 1
Totale piani:
1
Balconi:
1
Camere da letto:
1
Arredamento:
Completo
Mostra tutto
Prezzo Prezzo
€ 110.000
Rata mutuo Rata mutuo
€ 525 / mese
Spese annue Spese annue
€ 350
Proponi il tuo prezzoProponi il tuo prezzo

Classe Energetica

E
E
E
E
E
E
E
E
E
EP globale non rinnovabile:
207.17 kW h/m² anno
EP globale rinnovabile:
207.17 kW h/m² anno
EP invernale del fabbricato:
EP estiva del fabbricato:
Anno di costruzione:
1967
Riscaldamento:
Autonomo
Tipo impianto:
A radiatori
Tipo alimentazione:
Metano

Ti interessa visionare l'immobile?

Fissa un appuntamento  Fissa un appuntamento

Richiedi informazioni

Clicca su Leggi per aprire l'informativa
* Questi campi sono obbligatori

Calcola il tuo mutuo

Semplice e senza impegno
Anticipo

( % )
Mutuo

( % )

pochi semplici passi

inserisci i tuoi dati
Questionario completato
Grazie per aver richiesto un appuntamento senza impegno con un nostro Consulente del Credito e Assicurativo.

Hai inserito correttamente tutti i dati necessari e a breve riceverai una e-mail con un link da convalidare per inviare i tuoi dati.
Affiliato
Studio Alpignano Uno Srl
Via Mazzini, 4 10091 Alpignano (TO)

Il nostro staff


  • Vincenzo Pio D'Eredità
    Affiliato

  • Marika Guerra
    Collaboratrice

  • Sabrina Motta
    Collaboratrice

  • Giorgia Irmici
    Coordinatrice
Via Mazzini, 4 10091 Alpignano (TO)
Zona: Alpignano - P.zza 8 Marzo - Maiolo - Campagnola - Sassetto
Mostra su mappa
Orari: dal lunedì al venerdì 8.45-12.30/14.30-20.00; sabato 8.45-12.30/14.30-19.30.
Affiliato
Studio Alpignano Uno Srl
Via Mazzini, 4 10091 Alpignano (TO)

2026 Tecnocasa Franchising S.p.A. - P. IVA 08365160152 - Via Monte Bianco 60/A 20089 Rozzano (MI). Ogni agenzia ha un proprio titolare ed è autonoma. Privacy policy | Policy utilizzo | Cookie policy