Porzione di quadrifamiliare in vendita

Alpignano, Via rivoli
€ 198.000
5 locali 5 locali
110 Mq 110 Mq
1 bagno 1 bagno

Porzione di quadrifamiliare in vendita

Alpignano, Via rivoli

Descrizione annuncio

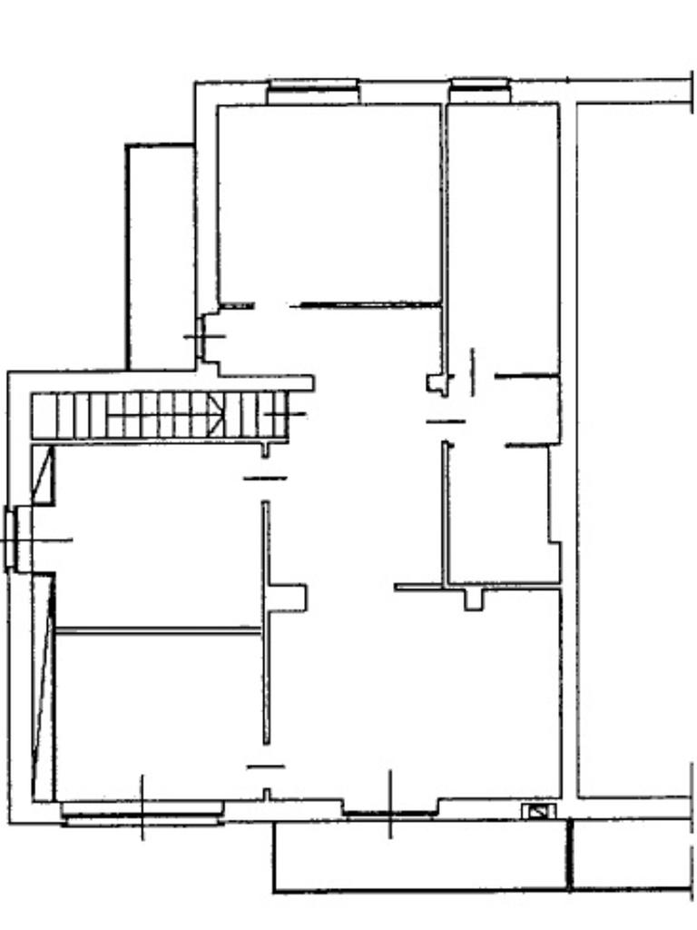
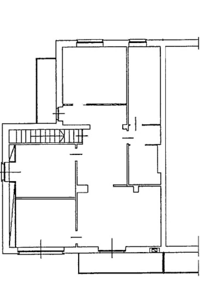
Il soggiorno e la cucina formano un unico grande ambiente, valorizzato dal balcone che affaccia sul lato principale della quadrifamiliare. Le dimensioni del living, potrebbero permettere anche la divisione con la cucina, trasformandola in abitabile a tutti gli effetti. Nel recente rifacimento del tetto coibentato, è stata posata la canna fumaria che ha permesso l'inserimento della stufa a legna nel soggiorno. Essenzialmente luminoso grazie alle dimensioni dell'infisso che ospita il suo interno, il living consente l'accesso ad ogni locale dell'appartamento. La prima camera da letto, posizionata verso il lato interno del fabbricato, è adiacente al secondo balcone arricchito dalle tende a rullo invernali ed estive. Attraverso il disimpegno è possibile raggiungere il grande bagno finestrato, all'interno del quale trovano spazio oltre che i sanitari anche vasca e doccia angolare. La seconda e la terza camera da letto, possiedono dimensioni simili e, la caratteristica di entrambe è il tetto in legno a vista. Adiacenti tra loro, rispettivamente affacciano sulla facciata principale la prima e su quella laterale la seconda. Il disimpegno di accesso al servizio, consente l'utilizzo della comoda e funzionale lavanderia, all'interno della quale è presente la scala retraibile che permette di raggiungere il grande locale sottotetto. Arricchito dal Velux, quest'ultimo si presenta alto e ben sfruttabile. La completa ristrutturazione ultimata da una decina di anni, ha visto oltre che il rifacimento del tetto anche tutti gli infissi esterni ed ogni impianto tecnologico. L'ottima coibentazione dei muri esterni è garantita dall'insufflaggio e, dall'utilizzo di materiali specifici. Tutta la pavimentazione dell'appartamento è omogenea al di fuori del servizio igienico. L'ingresso all'immobile è indipendente ed avviene attraverso la scala privata accessibile dalla porta blindata. La quadrifamiliare che ospita l'immobile è priva di amministratore e spese condominiali. Al piano interrato è presente il grande garage di proprietà, all'interno del quale trovano spazio anche 3 auto. Adiacente a quest'ultimo è presente la spaziosa cantina. Il riscaldamento è autonomo e gestito dalla caldaia a condensazione, così come l'acqua calda sanitaria. Posizionato ai confini con Rivoli, non manca la privacy pur offrendo ogni servizio di prima necessità a portata di mano.

Mostra tutto

Nelle vicinanze

Trasporto pubblico Trasporto pubblico
Alpignano
Alpignano
410 m
Pietre
Pietre
110 m
Cambiano
Cambiano
310 m
Ricariche auto elettriche Ricariche auto elettriche
EnelX EVA+ Centro Commerciale Auchan Rivoli
1,7 Km
Pianezza Papa Giovanni II | EnelX
2,5 Km
Piscina I. Bonino | EnelX
2,8 Km
Mercatò Rivoli
2,8 Km
Mercatò Rivoli | EnelX fast
3,0 Km
Scuole Scuole
Scuola Primaria "Filippo Turati"
600 m
Scuola Primaria "Giacomo Matteotti"
1,0 Km
Scuola Primaria "Clementina Perone"
1,1 Km
Scuole
1,1 Km
Scuola Primaria "Casa del Sole"
1,2 Km
Farmacia Farmacia
Farmacia
530 m
Farmacia San Giacomo
850 m
Farmacia Vietti
1,2 Km
Farmacia Internazionale
1,2 Km
Farmacia Comunale 5
1,5 Km
Ospedali Ospedali
Ospedali
880 m
RSA Residenza al Castello
1,2 Km
Poliambulatorio ASL
2,3 Km
IRM
2,8 Km
Poliambulatorio Villa Iris
3,0 Km
Supermercati Supermercati
U2
850 m
iN's
900 m
Crai
1,1 Km
Naturasi
1,2 Km
Coop
1,6 Km
Negozi Negozi
Negozi
580 m
Intimo Fernanda
1,3 Km
Bread House
1,3 Km
Forno Girolina
1,3 Km
Magazine Stock House
1,3 Km
Bar Bar
Bar
630 m
Bollincine
670 m
Zanzibar
1,3 Km
Bar Susa
1,3 Km
Pinguino
1,3 Km
Ristoranti Ristoranti
Pizza In Piazza
550 m
Oasi dello chef
710 m
La casa di Totò
760 m
Ristoranti
780 m
Allanté Creperie
1,3 Km
Mostra tutto

Caratteristiche

Rif.:
61118123
Piano:
1 di 1 (ultimo Piano)
Box:
1
Posti auto:
1
Balconi:
2
Camere da letto:
3
Mostra tutto
Prezzo Prezzo
€ 198.000
Rata mutuo Rata mutuo
€ 923 / mese
Spese annue Spese annue
€ 0
Proponi il tuo prezzoProponi il tuo prezzo

Classe Energetica

G
G
G
G
G
G
G
G
G
EP globale non rinnovabile:
100.00 kW h/m² anno
EP globale rinnovabile:
100.00 kW h/m² anno
EP invernale del fabbricato:
EP estiva del fabbricato:
Anno di costruzione:
1970
Riscaldamento:
Autonomo
Tipo impianto:
A radiatori
Tipo alimentazione:
Metano

Ti interessa visionare l'immobile?

Fissa un appuntamento  Fissa un appuntamento

Richiedi informazioni

* Questi campi sono obbligatori

Calcola il tuo mutuo

Semplice e senza impegno
Anticipo

( % )
Mutuo

( % )

pochi semplici passi

inserisci i tuoi dati
Questionario completato
Grazie per aver richiesto un appuntamento senza impegno con un nostro Consulente del Credito e Assicurativo.

Hai inserito correttamente tutti i dati necessari e a breve riceverai una e-mail con un link da convalidare per inviare i tuoi dati.
Affiliato
Studio Alpignano Uno Srl
Via Mazzini, 4 10091 Alpignano (TO)

Il nostro staff


  • Vincenzo Pio D'Eredità
    Affiliato

  • Pamela Grandi
    Coordinatrice

  • Marika Guerra
    Collaboratrice

  • Sabrina Motta
    Collaboratrice
Via Mazzini, 4 10091 Alpignano (TO)
Zona: Alpignano - P.zza 8 Marzo - Maiolo - Campagnola - Sassetto
Mostra su mappa
Orari: dal lunedì al venerdì 8.45-12.30/14.30-20.00; sabato 8.45-12.30/14.30-19.30.
Affiliato
Studio Alpignano Uno Srl
Via Mazzini, 4 10091 Alpignano (TO)

2025 Tecnocasa Franchising S.p.A. - P. IVA 08365160152 - Via Monte Bianco 60/A 20089 Rozzano (MI). Ogni agenzia ha un proprio titolare ed è autonoma. Privacy policy | Policy utilizzo | Cookie policy