Porzione di bifamiliare in vendita

Alpignano, Via Cavour - Centro
€ 279.000
5 locali 5 locali
135 Mq 135 Mq
2 bagni 2 bagni

Porzione di bifamiliare in vendita

Alpignano, Via Cavour - Centro

Descrizione annuncio

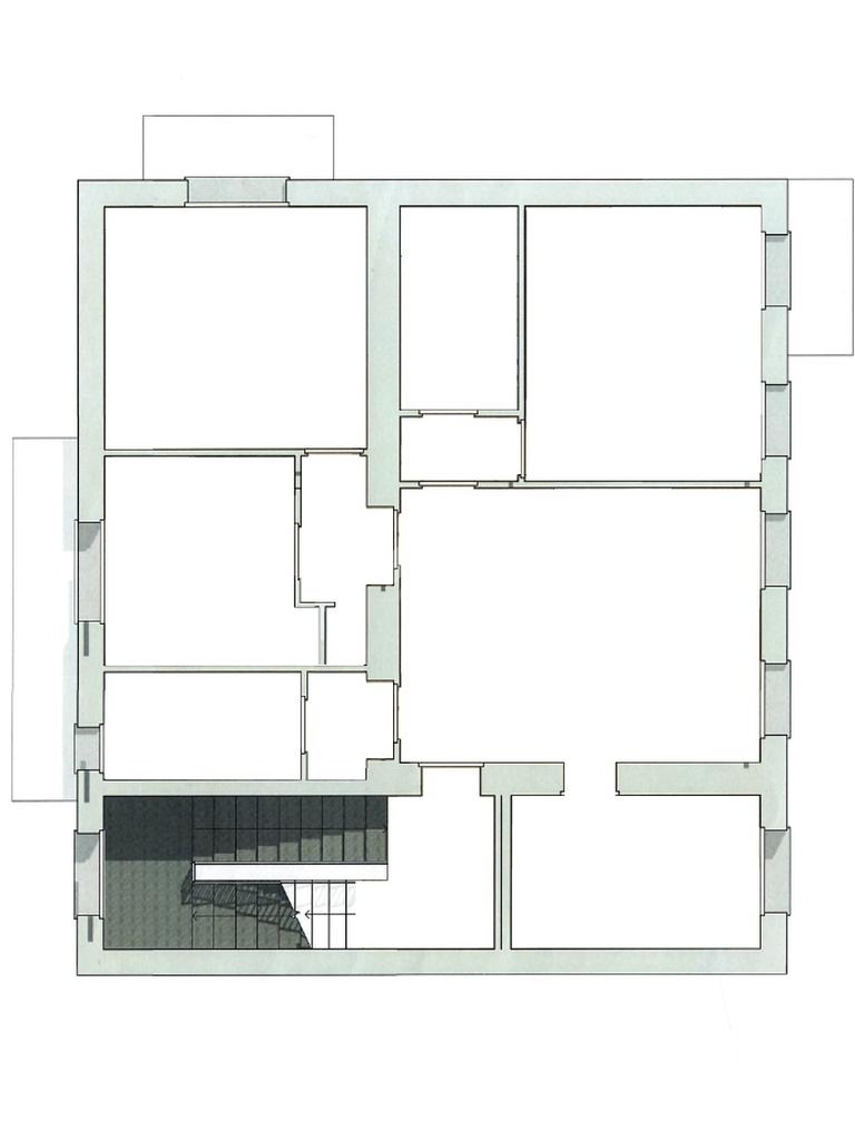
Il completo recupero dell'intero fabbricato, vedrà la ristrutturazione integrale di ogni spazio. L'appartamento in oggetto è ubicato al piano primo e possiede 4 balconi. Libero su tre lati e particolarmente esposto al sole, l'immobile avrà accesso attraverso la porta blindata sull'ampio soggiorno living. Adiacente a quest'ultimo sarà presente la cucina abitabile che avrà accesso al primo balcone. Il soggiorno, caratterizzato dagli ampi spazi e, dalle due finestre che ospita al suo interno, consentirà la possibilità di accedere al disimpegno che raggiunge le prime due camere da letto. Entrambe avranno rispettivamente il proprio balcone privato. Adiacente ad esse sarà presente il primo grande bagno finestrato, all'interno del quale sarà posata la doccia. A precedere il servizio igienico sarà l'antibagno, che ospiterà lavatrice ed asciugatrice. Un secondo disimpegno, accessibile anch'esso dalla zona giorno, porterà al secondo bagno ed alla terza ed ultima camera da letto che avrà accesso al quarto balcone. Valorizzato dalle dimensioni dei vari locali, l'appartamento verrà consegnato finito in ogni dettaglio con le relative dichiarazioni di conformità degli impianti tecnologici. Al piano terreno, sarà presente il comodo e rarissimo box auto di proprietà. Inserito in un contesto di sole due unità abitative, privo di amministratore e di spese condominiali, l'appartamento avrà di pertinenza anche una grandissima cantina. Il riscaldamento autonomo e l'acqua calda sanitaria, verranno gestiti entrambi dalla nuova caldaia a condensazione. Posizionato nel pieno centro di Alpignano, comodissimo ad ogni servizio di prima necessità, l'immobile sarà ultimato e consegnato nell'estate del 2026. L'assenza di amministratore e, di spese condominiali, rendono l'immobile particolarmente interessante.

Mostra tutto

Nelle vicinanze

Trasporto pubblico Trasporto pubblico
Alpignano
Alpignano
1,0 Km
Toti
Toti
120 m
Vittorio Veneto
Vittorio Veneto
120 m
Ricariche auto elettriche Ricariche auto elettriche
Piscina I. Bonino | EnelX
1,7 Km
Pianezza Papa Giovanni II | EnelX
1,9 Km
Pianezza II Giugno | EnelX
2,5 Km
EnelX EVA+ Centro Commerciale Auchan Rivoli
2,7 Km
Scuole Scuole
Scuola Materna "Luigi Caccia"
200 m
Scuola Primaria "Antonio Gramsci"
350 m
Scuola Secondaria di primo grado "Alberto Tallone"
470 m
Scuola Primaria "Filippo Turati"
860 m
Scuola Primaria "Giacomo Matteotti"
960 m
Farmacia Farmacia
Farmacia Vietti
180 m
Farmacia Comunale 5
230 m
Farmacia San Giacomo
550 m
Farmacia
870 m
Farmacia Futura
1,1 Km
Ospedali Ospedali
Ospedali
530 m
RSA Residenza al Castello
640 m
Poliambulatorio ASL
1,8 Km
Poliambulatorio Villa Iris
2,2 Km
IRM
2,6 Km
Supermercati Supermercati
U2
560 m
LD
850 m
Lidl
890 m
Carrefour Market
990 m
Supermercati
1,8 Km
Negozi Negozi
United Colors of Benetton
50 m
Forno Girolina
120 m
Negozi
870 m
Panetteria da Franco
880 m
Le follie di Katia
1,9 Km
Bar Bar
Ferehneit 451
480 m
Lattolandia
540 m
Bollincine
730 m
Operà
1,1 Km
Caffè Lara
1,9 Km
Ristoranti Ristoranti
Ristorante Pizzeria Farenheit 451
480 m
La casa di Totò
630 m
Oasi dello chef
700 m
Ristoranti
790 m
Pizza In Piazza
870 m
Mostra tutto

Caratteristiche

Rif.:
61143023
Piano:
1 di 1 (ultimo Piano)
Box:
1
Balconi:
4
Camere da letto:
3
Arredamento:
Assente
Mostra tutto
Prezzo Prezzo
€ 279.000
Rata mutuo Rata mutuo
€ 1.331 / mese
Spese annue Spese annue
€ 0
Proponi il tuo prezzoProponi il tuo prezzo

Classe Energetica

G
G
G
G
G
G
G
G
G
EP globale non rinnovabile:
100.00 kW h/m² anno
EP globale rinnovabile:
100.00 kW h/m² anno
EP invernale del fabbricato:
EP estiva del fabbricato:
Anno di costruzione:
1960
Riscaldamento:
Autonomo
Tipo impianto:
A radiatori
Tipo alimentazione:
Metano

Ti interessa visionare l'immobile?

Fissa un appuntamento  Fissa un appuntamento

Richiedi informazioni

Clicca su Leggi per aprire l'informativa
* Questi campi sono obbligatori

Calcola il tuo mutuo

Semplice e senza impegno
Anticipo

( % )
Mutuo

( % )

pochi semplici passi

inserisci i tuoi dati
Questionario completato
Grazie per aver richiesto un appuntamento senza impegno con un nostro Consulente del Credito e Assicurativo.

Hai inserito correttamente tutti i dati necessari e a breve riceverai una e-mail con un link da convalidare per inviare i tuoi dati.
Affiliato
Studio Alpignano Uno Srl
Via Mazzini, 4 10091 Alpignano (TO)

Il nostro staff


  • Vincenzo Pio D'Eredità
    Affiliato

  • Marika Guerra
    Collaboratrice

  • Sabrina Motta
    Collaboratrice

  • Giorgia Irmici
    Coordinatrice
Via Mazzini, 4 10091 Alpignano (TO)
Zona: Alpignano - P.zza 8 Marzo - Maiolo - Campagnola - Sassetto
Mostra su mappa
Orari: dal lunedì al venerdì 8.45-12.30/14.30-20.00; sabato 8.45-12.30/14.30-19.30.
Affiliato
Studio Alpignano Uno Srl
Via Mazzini, 4 10091 Alpignano (TO)

2026 Tecnocasa Franchising S.p.A. - P. IVA 08365160152 - Via Monte Bianco 60/A 20089 Rozzano (MI). Ogni agenzia ha un proprio titolare ed è autonoma. Privacy policy | Policy utilizzo | Cookie policy